-    Slide titleTHREE STOREY MID-TERRACE IN A CONSERVATION AREA Button
-    Slide titleSIDE & LOFT EXTENSION Button
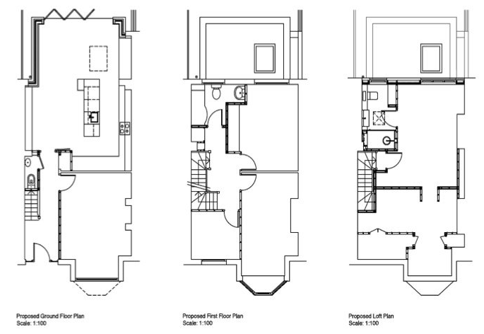
-  Slide titleINFILL REAR EXTENSION & LOFT CONVERSION Button
-    Slide titleDOUBLE STOREY REAR EXTENSION Button
-    Slide titleERECTION OF A SINGLE STOREY REAR INFILL EXTENSION Button
-    Slide titleINTERIOR REMODEL WITH SUN STUDY Button
-    Slide titleINTERIOR REFURBISHMENT IN A VILLAGE HOUSE Button
-    Slide titleLOFT CONVERSION TO A MAISONETTE Button

