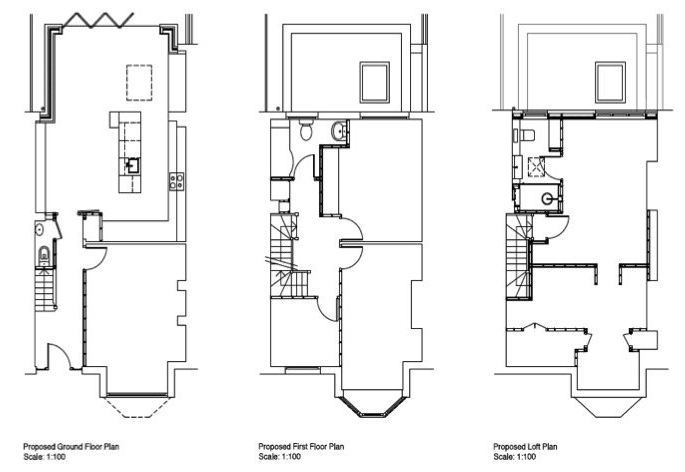
DEMOLITION OF EXISTING REAR EXTENSION AND ERECTION OF NEW SINGLE STOREY REAR EXTENSION ERECTION OF REAR ROOF EXTENSION & COMPLETE REFURBISHMENT FOR A MID TERRACE IN A CONSERVATION AREA | MERTON, LONDON
Client: Domestic
Gross Area: 399m2
Budget: £150k
Scope of Works: Concept Design | Developed design | Planning Application | Technical design | Construction | Handover and close out | In use
Roles: Architect | Structural Design | Building Services | Design Management

